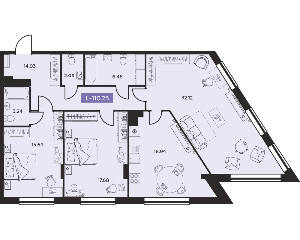
3 комнатная Квартира №113

Продаётся 3-комнатная квартира в жилом комплексе Левитан, срок сдачи: 4 - квартал 2025 года. Квартира общей площадью 110.25 кв.м. и расположена на 12 этаже.

Параметры квартиры:

Класс недвижимости:

Комфорт

Площадь

110.25 кв.м

Количество комнат

3

Сан. узел

Совмещенный

Отделка

Черновая

Сдача квартиры

4 кв. 2025

Жилая площадь

65.49 кв.м

Этаж

12 из 14

Высота потолков

2,8 м

Менеджер по продажам

Отдел продаж

+7(4932) 57-42-42